168幸运澳洲5历史开奖记录

会所铁板烧设备,单位内部接待铁板烧包间专用设备定制

铁板烧是一种厨师与食客面对面操作,食客可以直观看到新鲜食材制作的全部过程,并能欣赏厨师精彩演绎的料理方式,不仅满足了味蕾的需求更是一场视觉盛宴。

日式铁板烧,法式铁板烧,台式铁板烧都有什么区别

随着国内餐饮形式的不断发展,出现了很多新的餐饮形式,越来越多的高端私人会所成为商务接待和私人聚会新场所;

很多公司和单位会在总部设计专门的接待场所,按照铁板烧餐厅的标准,配置一个专属接待珍贵关系的铁板烧包间,用作接待重要的客户以及合作伙伴,彰显公司实力和接待诚意。

66.jpg

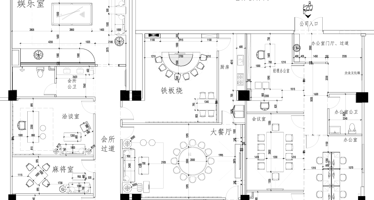
会所和单位内部铁板烧包间图纸参考

67.jpg

单位内部独立铁板烧包间设备布局图,1米2设备,7个板前就餐位。

68.jpg

高端会所铁板烧包间铁板烧设备布局图,2米长设备,12个板前就餐位。

69.png

某集团公司总部接待场所和铁板烧包间图纸

铁板烧厨师团队,外烩上门厨师推荐

志铭铁板烧专业从事高端商用铁板烧设备的研发和制造,从业20多年,铁板烧餐厅客户遍布全国每个城市。

可以帮您推荐专业的厨师团队到店工作,或者预约上门外烩的铁板烧厨师,有接待需求的时候上门做菜。

铁板烧·志铭造

69.jpg

志铭实业拥有专业的技术服务团队,使得公司形成了一整套成熟化、科学化的流水作业程序,有力的保证志铭实业不断创新设计,推出满足市场需求的前沿产品。

微信扫一扫,添加志铭实业客服随时沟通

微信扫一扫,添加志铭实业客服随时沟通

168幸运澳洲5历史开奖记录